Everything You Need to Know About Demolition Permits
Are you confused about what you need in order to start a demolition project? In most cases, you’re going to need a demolition permit. It’s...
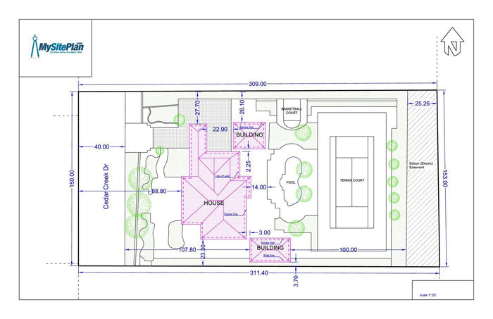
OUR SITE PLANS ARE NOT A SURVEY, NOR ARE THEY INTENDED TO REPLACE ONE. LEARN MORE ABOUT NON-CERTIFIED SITE PLANS HERE.